NAVES
CASAS & JARDINES
VIVIENDA
TORRES
HOTELES
ENSAMBLES
CUBIERTAS
TERRITORIO
URBANISMO
PUBLICACIONES
TALLER
CONTACTO
INICIO
Menu
TAX
NAVES
CASAS & JARDINES
VIVIENDA
TORRES
HOTELES
ENSAMBLES
CUBIERTAS
TERRITORIO
URBANISMO
PUBLICACIONES
TALLER
CONTACTO
INICIO
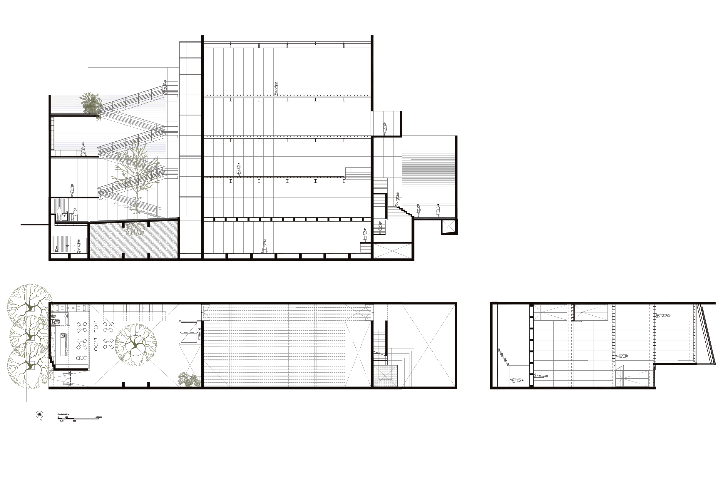
GALERIA SABINO
2023
Ciudad de México, México
Fotos: Nin Solis, César Belio, Chirika Studio